Получите полную презентацию поселка

Дом, 433 м2

Цена: 65 000 000 руб.
Код объекта: 110-464

Новый дом в стиле современной классики, построенный из керамического блока Porotherm с отделкой фасада немецким клинкерным кирпичом. В доме – высокие потолки, цокольный этаж с сауной и удобными кладовыми, высококлассная инженерная инфраструктура, в том числе центральная вентиляция и бельепровод. На 1-м этаже – зимний сад-терраса с панорамным остеклением и раздвижными окнами на 3 стороны. Оформление интерьера выполнено в светло-серых тонах из высококачественных материалов в соответствии с актуальными трендами дизайна. Гостиную с окнами в пол украшает эффектный классический камин с порталом от пола до потолка, отделанный мрамором. Дом стоит на видовом участке рядом с рекой Десна и лесом в обжитой части охраняемого коттеджного посёлка бизнес-класса.

Общая площадь строений: 433 м2
Год постройки дома: 2019 (отделка выполнена в 2023 году)
Количество уровней: 3
Спален: 4. С/узлов полных: 3. С/узлов неполных: 1. Комнат всего: 8.
Опции: машиномест крытых: 1, в т.ч. в теплом гараже: 1; сауна; терраса; камин; холодный чердак на мансардном этаже.
Материал стен: керамический блок Porotherm
Облицовка стен: клинкерный кирпич ROBEN (Германия)
Стадия готовности: под финишную отделку
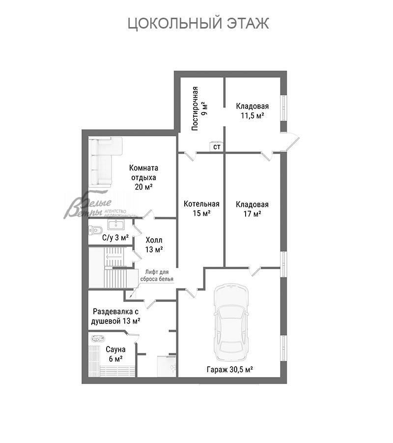
Цоколь: холл 13 кв.м, сауна 6 кв.м, раздевалка с душевой 13 кв.м, комната отдыха 20 кв.м, санузел 3 кв.м, кладовая 17 кв.м, кладовая 11,5 кв.м, постирочная 9 кв.м, котельная 15 кв.м, гараж 30,5 в.м
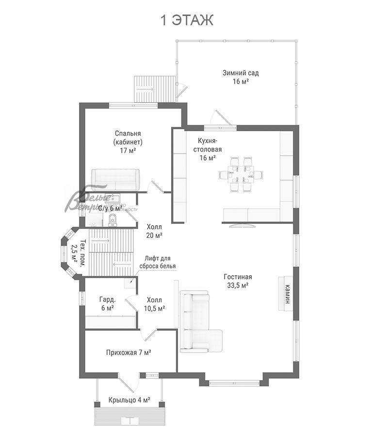
1-ый этаж: крыльцо 4 кв.м, прихожая 7 кв.м, холл 10,5 кв.м, холл 20 кв.м, гостиная 33,5 кв.м, кухня-столовая 16 кв.м с выходом в зимний сад 16 кв.м, спальня (кабинет) 17 кв.м, санузел 6 кв.м, гардеробная 6 кв.м, хозяйственное помещение 2,5 кв.м
2-ой этаж: холл 13 кв.м, мастер-спальня 26 кв.м с гардеробной 9 кв.м, санузлом 9,5 кв.м, коридором 3,5 кв.м и выходом на балкон 2 кв.м, спальня 16 кв.м с гардеробной 5 кв.м, спальня 17 кв.м с санузлом 4,5 кв.м
3-ий этаж: мансардный этаж: холодный чердак
Описание внутренней отделки: выполнена отделка под финиш в соответствии с актуальными трендами дизайна интерьера. Стены в общих помещениях на 1-м этаже подготовлены под покраску, в спальнях поклеены обои, в санузлах – керамогранит и плитка. На полу – плитка с тёплым полом (в общих помещениях на 1-м этаже и в санузлах), в спальнях – ламинат. Потолки из гипсокартона, многоуровневые с подсветкой (в зимнем саду потолки деревянные). Установлены межкомнатные двери на 2-м этаже высотой 2,4 м (серого цвета), стильная входная дверь с терморазрывом (зелёного цвета с золотой патиной и двумя стеклянными секциями), стальные радиаторы Buderus, подрозетники. На второй этаж ведёт монолитная бетонная лестница со ступенями из керамогранита (имитация дуба). Гостиную украшает эффектный камин с порталом в классическом стиле от пола до потолка, отделанным коричневым мрамором. В гараже – автоматические ворота
Инженерное обеспечение: все коммуникации разведены до точек, выполнены выводы под электрику во всех помещениях. Отопление – через напольный котёл Buderus на 32 кВт (медная обвязка котла). Горячее водоснабжение – через бойлер Reflex на 300 л (в котельной есть накопительный бак на 500 л). Установлена многоступенчатая система очистки воды Экодар. Вентиляция - принудительная центральная и приточно-вытяжная с кондиционированием и рекуперацией
Мебель, оборудование: в санузлах установлена импортная сантехника
Дополнительная информация о доме: фундамент - монолитная плита, межэтажные перекрытия монолитные. Высота потолков на 1-м этаже – 3,2 м, на 2-м этаже – 3 м, на цокольном этаже – 3 м

Участок

Площадь участка, соток: 14
Тип участка: с деревьями
Благоустройство участка: территория участка подготовлена для реализации ландшафтного дизайна, частично выполнено фасадное освещение и укладка дорожек. По периметру участка проходит дренажная система. Высажены взрослые ели и сосны.
Статус земли: ЗНП, ДНП
Дополнительная информация об участке: видовой участок с естественным уклоном расположен в тихой части коттеджного посёлка (на улице, которая полностью застроена) в 350 м от реки Десна неподалёку от лесного массива. На территории участка – 3 функциональные зоны, в том числе под 2 террасы по бокам участка. Участок огорожен по 3-м сторонам кованым забором в стиле посёлка, по 1-й стороне – профлистом


Фото


Планировки